Container Straddle Carrier

Container straddle carriers are specialized machines used for horizontal handling and stacking of containers at the terminal front and in the yard. They are widely used due to their flexibility, high efficiency, good stability and low wheel pressure.

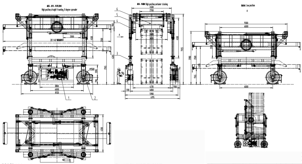
  • Lifting Capacity:35-80 tons
    Lifting Height:customized
    Span:customized
    Working Duty:A4
    Ambient Temperature:-20~40℃

Container Straddle Carrier Introduction

A straddle carrier-based lifting system is the fastest and safest choice for medium-sized terminal freight stations; the straddle carrier itself can function as an independent system. Straddle carriers can meet all different load handling needs in container yards: bridge crane transportation and stacking of containers, as well as cargo loading and unloading of trucks and rail trucks.

Features of Container Straddle Carrier

  • Versatility: Versatile straddle carriers can handle a variety of loads, including containers, steel coils and bulky materials, making them ideal for a variety of industries.
  • Precision handling: Advanced steering and stability control ensure accurate load positioning, even in narrow or crowded spaces.
  • High capacity: These carriers are used to lift and transport heavy objects, optimizing material handling in industrial environments.
  • Efficiency: Their design allows for fast load transfer, which reduces operating time and increases productivity.
    Safety features: Equipped with load monitoring and automation systems, they minimize risks during heavy lifting tasks, thereby improving operational safety.