Boat Travel Lift
The marine travel lift is a non-standard equipment designed and manufactured according to the different needs of customers. It is mainly used for launching and disembarking boats. It can easily realize the maintenance, repair or launching of these different boats at a very low cost.
- Lifting Capacity:10-1000 tons
Lifting Height:customized
Span:customized
Boat Travel Lift Introduction
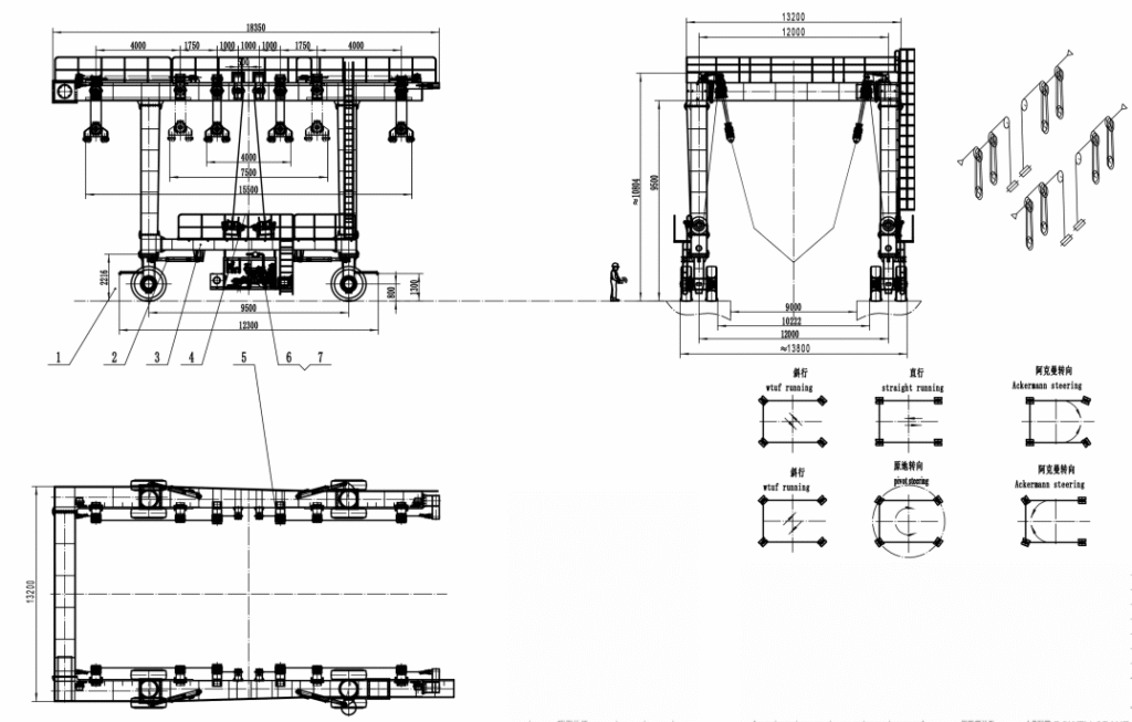
The boat travel lift has the functions of straight travel, oblique travel, 90-degree in-situ turning and fixed-axis rotation. It can flexibly place the boats on the shore site according to requirements, and can quickly arrange the boats in sequence, and the distance between the placed boats can be very small.
Components of Boat Travel Lift
The travel lift is mainly composed of a dismounting and traveling system (a tire-type flatbed), a main frame, a lifting system, a hydraulic system, an electronic control system, a power system and auxiliary structures.
Features of Boat Travel Lift
- Full protection system for safety design
- Qualified & reliable components
- High-efficient working ability
- Simple & minimal maintenance demand
- Easy operation
- Full functional test before delivery
- Free spares supplying
- Fast & easy site installation services
- Short delivery
- Open for 3rd party inspection